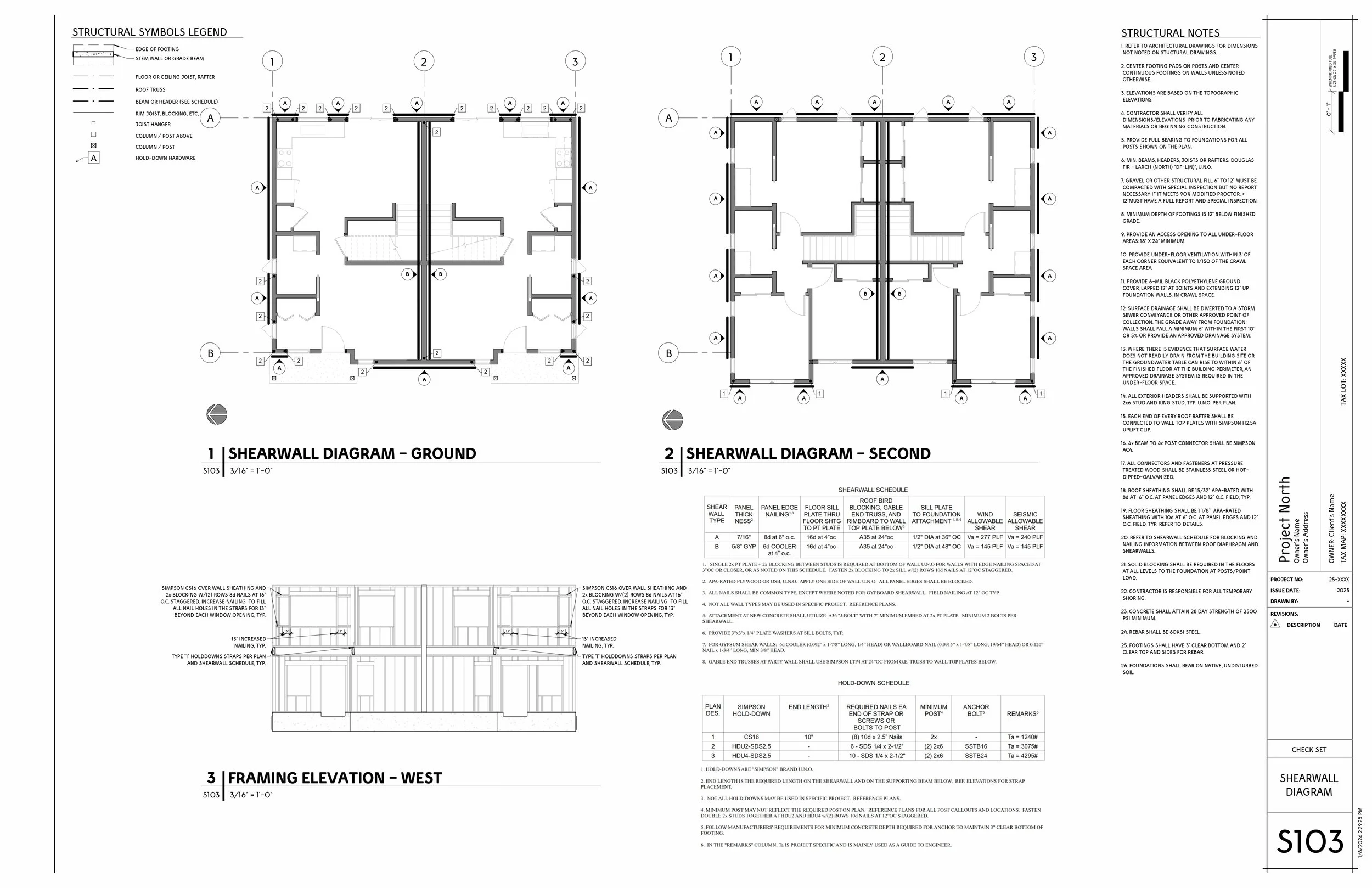
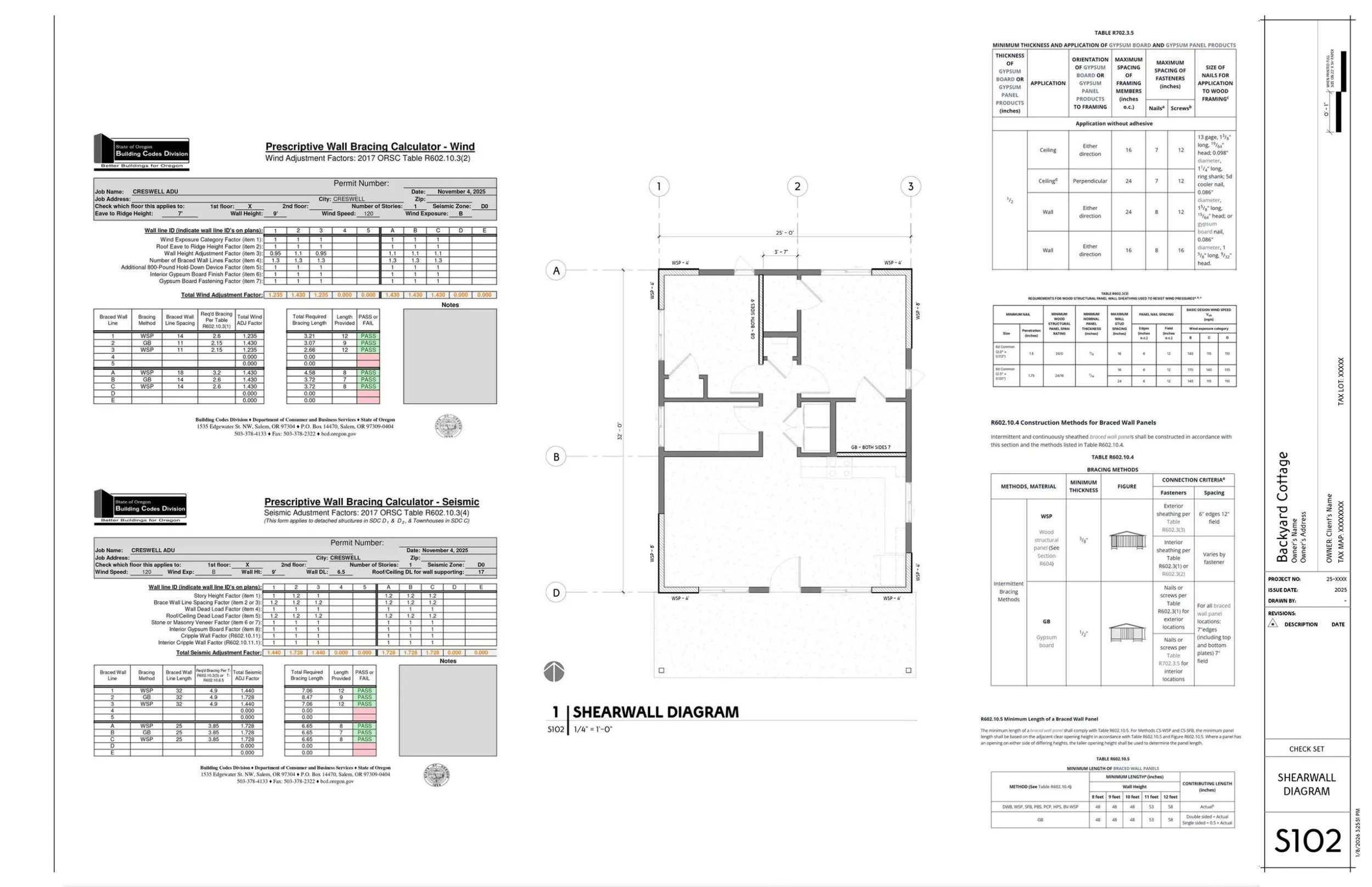
SHEARWALL DIAGRAM

Welcome to our Shear Wall Diagram Gallery. This collection showcases clear identification of shear wall locations, wall extents, and layout coordination within the overall plan set. Each diagram is drafted for clarity and consistency, supporting efficient review, coordination, and confident implementation.

Previous
Previous

FOUNDATION PLANS + FRAMING PLANS

Next
Next

LIGHTING PLAN