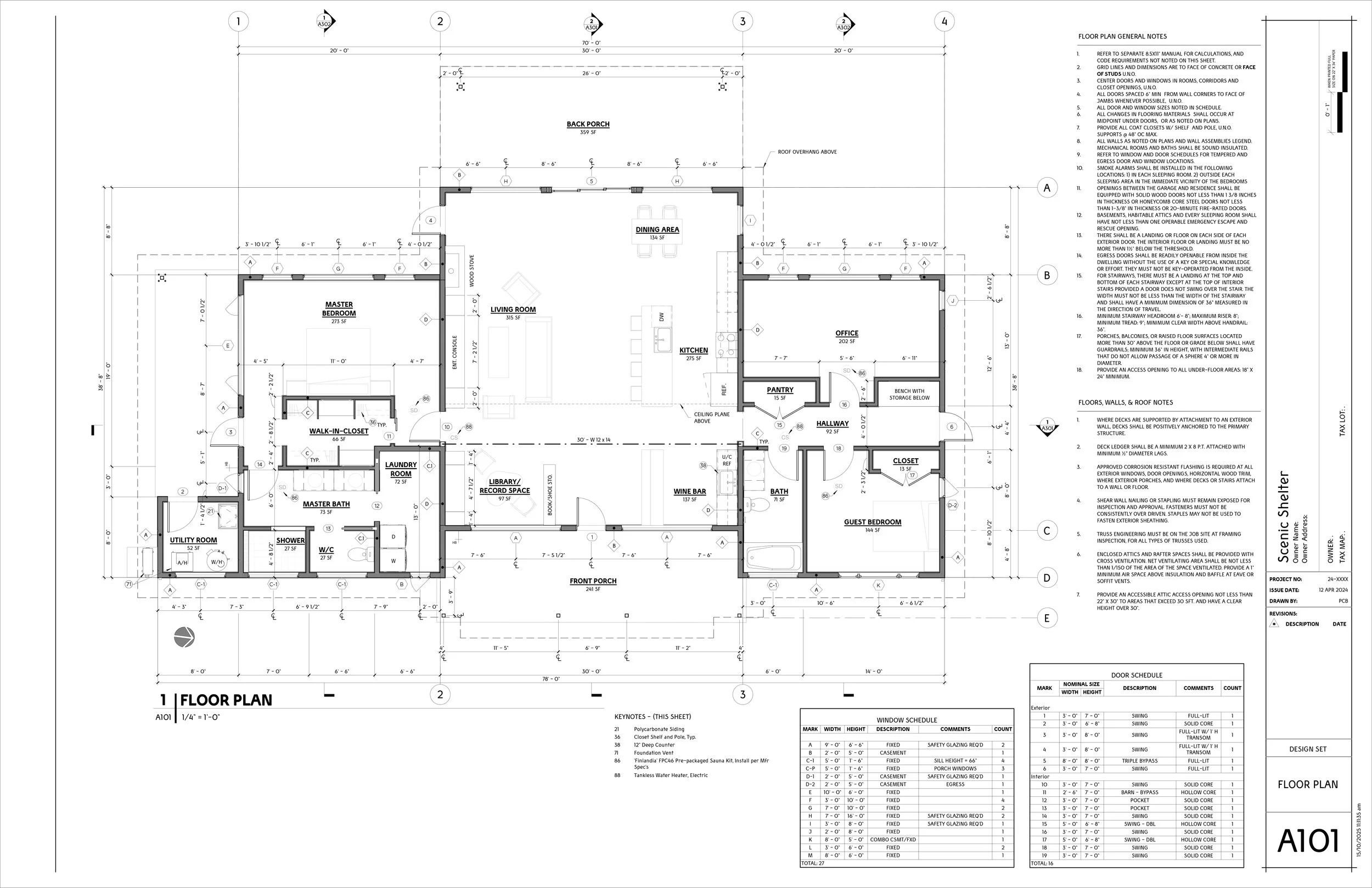
Scenic Shelter

This residential project was created to provide a comfortable and functional home tailored to the client’s lifestyle. Every space was designed with balance, natural light, and flow in mind. It showcases how thoughtful architecture can turn everyday living into an inspiring experience.

"Thoughtful spaces, timeless living."

Previous
Previous

Maison Lume