DETAILS

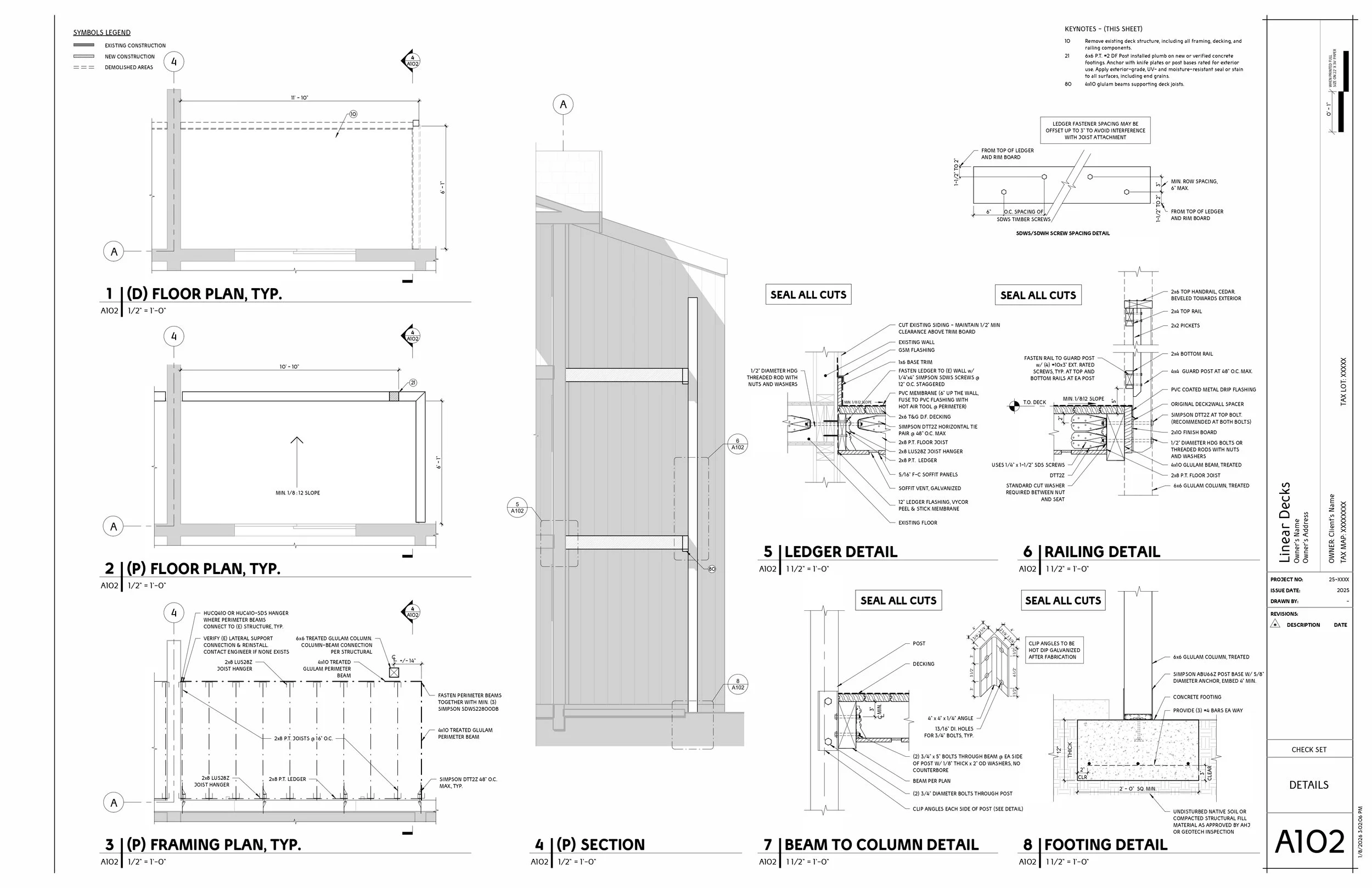
Welcome to our Details Gallery. This collection showcases enlarged plan, section, and elevation views that highlight critical portions of a structure. Each detail is carefully drafted to clarify dimensions, material transitions, and assembly relationships, providing the level of precision needed for accurate interpretation and execution.

Previous
Previous

SECTIONS

Next
Next

FOUNDATION PLANS + FRAMING PLANS