SECTIONS

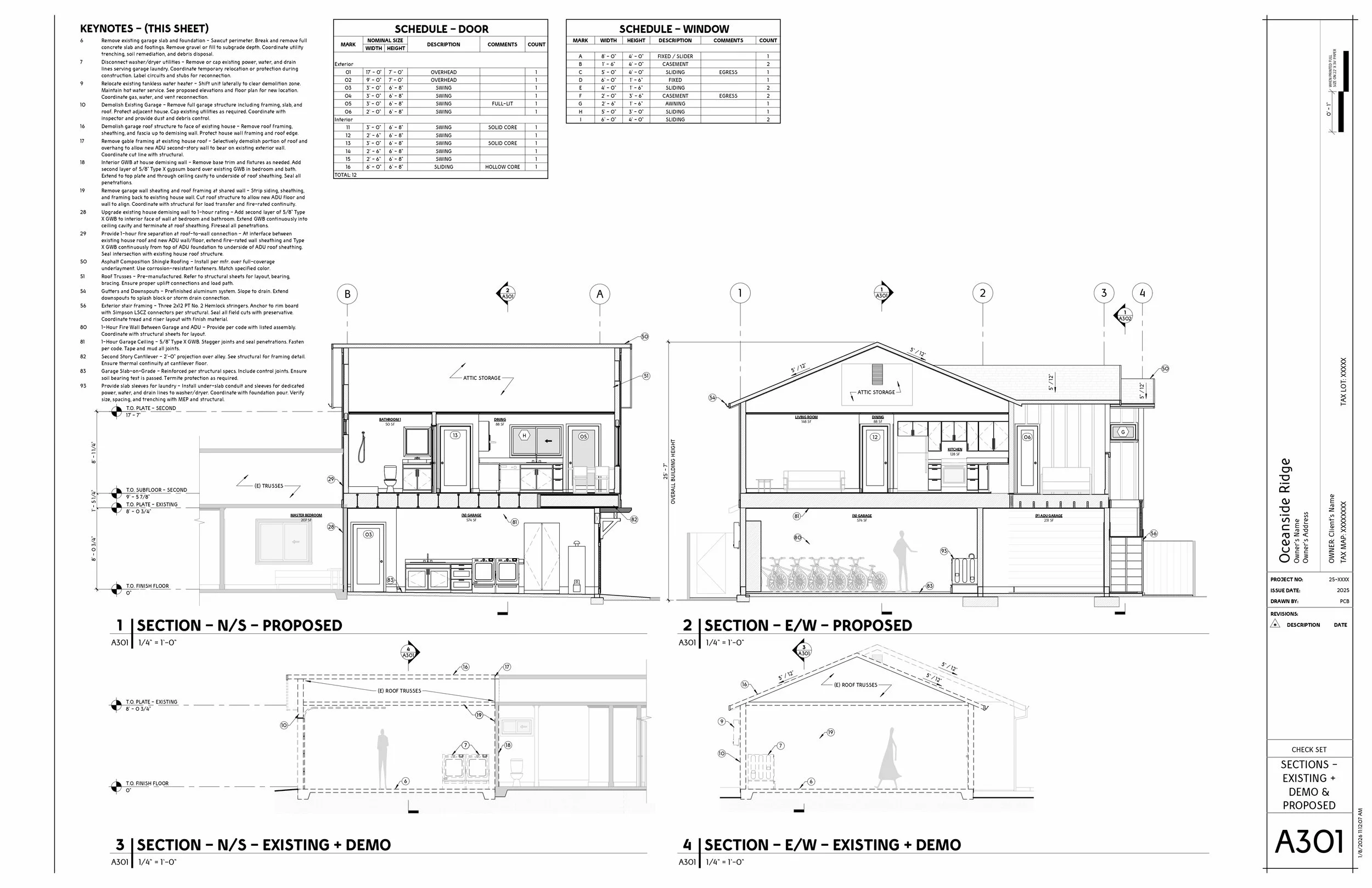
Welcome to our Section Gallery. This collection demonstrates our expertise in conveying interior volumes, floor-to-floor relationships, and critical vertical dimensions through clean linework and accurate scaling. Each section is drafted to provide clarity, coordination, and a deeper understanding of how the design comes together.

Previous
Previous

ELEVATIONS

Next
Next

DETAILS